
Project› By Type › Hospitality + Apartment
Fiancial Street Hailun
Team members' past works
Place
Shanghai
Customer
Financial Street Holdings
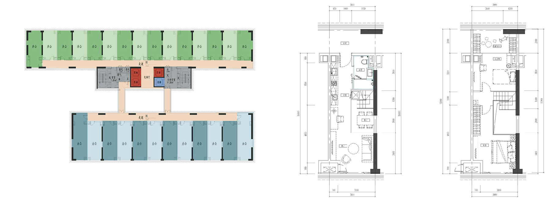
Function
Retail, Office
Scale
70,000sm
Design time
2014
Shanghai
Customer
Financial Street Holdings
Function
Retail, Office
Scale
70,000sm
Design time
2014