
Project› By Region › Asia
Fiancial Street Zhabei
Team members' past works
Place
Zhabei, Shanghai
Customer
Financial Street Holdings
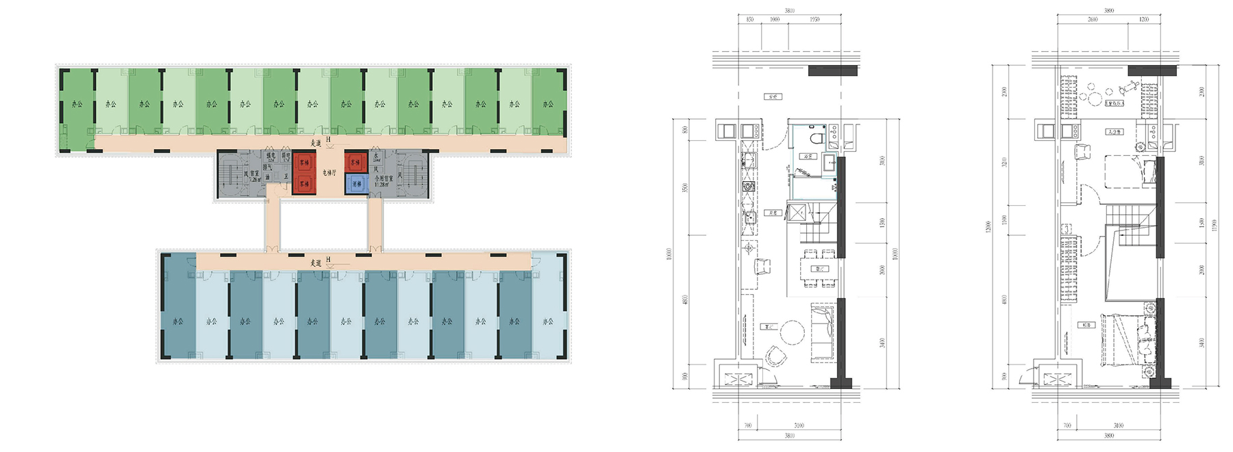
Function
Retail, Office, S.A
Scale
80,000sm
Design time
2015-2017
Zhabei, Shanghai
Customer
Financial Street Holdings
Function
Retail, Office, S.A
Scale
80,000sm
Design time
2015-2017