
项目 › 按地区 › 亚洲
金融街闸北
团队成员过往作品
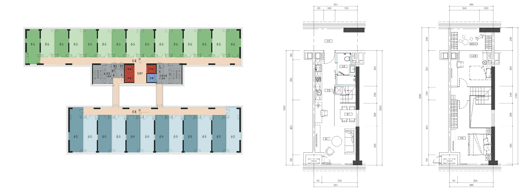
本项目是以商办功能为主的城市综合体,包括商务办公、商业购物、文化休闲等功能。南侧为轨道交通1 号线、3、4 号线和铁路线上海站。运用清晰的设计思路和设计方法,结合丰富的立面元素,梳理出区域交通组织方式,营造活力形象与协调统一的综合体。
地点
上海,闸北
客户
金融街控股
功能
商业,办公,公寓
规模
80,000㎡
设计时间
2015年-2017年
上海,闸北
客户
金融街控股
功能
商业,办公,公寓
规模
80,000㎡
设计时间
2015年-2017年